Workshop building for Konrad-Zuse School

BERLIN-PANKOW | Germany

Client
Land Berlin
GENERAL PLANNING | ARCHITECTURE
ZRS Architekten
STRUCTURAL ENGINEERING
ZRS Ingenieure
TECHNICAL BUILDING SERVICES
HDH Ingenieure
FIRE PROTECTION
CRP Bauingenieure
LANDSCAPE ARCHITECTURE
hochC Landschaftsarchitekten
EXECUTION STRUCTURAL WORK
Matthäi Bauunternehmen
EXECUTION TIMBER CONSTRUCTION
Zimmerei Sieveke
Net floor area
1157 m²
PLANNNIG TIME
07|2017–11|2019
CONSTRUCTION TIME
12|2019–06|2021
Nominations
EU Mies Award 2022
Photos
Giacomo Morelli

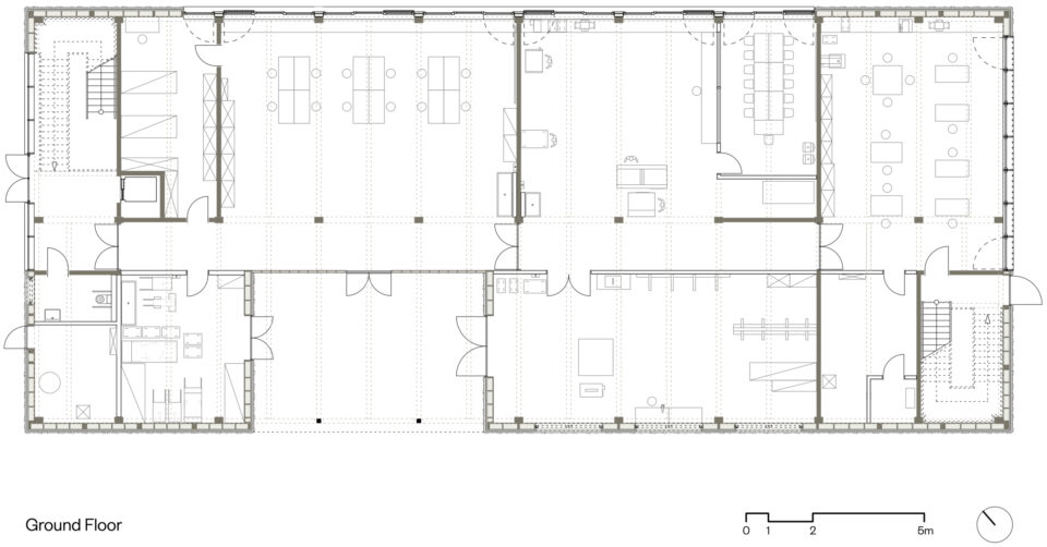
The new workshop building is an extension of the Konrad-Zuse School in Pankow, a vocational school with a focus on special needs education. Although the new two-storey building is located at the front of the school site, it remains clearly recognizable as an outbuilding due to its compact and simple form. A large window defines the street façade, while the workshops are orientated towards the school grounds. The entrance is part of a covered entrance zone, shared with the existing school building, and the lively façade consists of a relief-like cladding of carbonised wooden slats. In contrast to the dark outer shell, the interior wooden surfaces are kept in light colours and could be left uncladded thanks to the dimensioning of the timber components with regard to burn-off. With their warm colours, the wooden surfaces create a pleasant learning atmosphere. In addition to that, they ensure a balanced indoor climate.

The central idea of this project was the development of a building that can respond to changing spatial requirements and environmental influences in the future. The result is a modular construction with a large support span, offering a high degree of flexibility for future conversions. The house is built entirely of timber with a minimal ecological footprint. Room humidity and indoor temperature are controlled by a diffusion-open construction method and natural window ventilation. Thus, expensive and high-maintenance technology such as ventilation and air conditioning systems are not needed here. The concept of combining renewable building materials with a robust and simple construction method has a pilot character in the realization of school buildings. The use of natural building materials on the interior and exterior visualizes the sustainable construction method to the public and makes wood as a building material tangible for the users.

Video: vimeo.com

Holzbau Atlas Berlin Brandenburg