STAMPFLEHM HAUS IHLOW

Brandenburg, Deutschland

Bauherren
Dunja and Matthias Hein
Architektur
ZRS Architekten
Tragwerksplanung | Fachberatung Lehmbau | ENERGIEBERATUNG
ZRS Ingenieure
Fertigstellung
12|2006
GRUNDSTÜCK
583 m²
WOHNFLÄCHE
180 m²
Auszeichnung
Brandenburgischer Architekturpreis 2007 (Anerkennung für beispielhafte Lösungen für das Bauen im Bestand)
Fotos
1, 2, 3, 6: Torsten Seidel
4, 5: Ludger Paffrath
7–9: ZRS Architekten Ingenieure

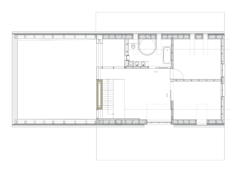
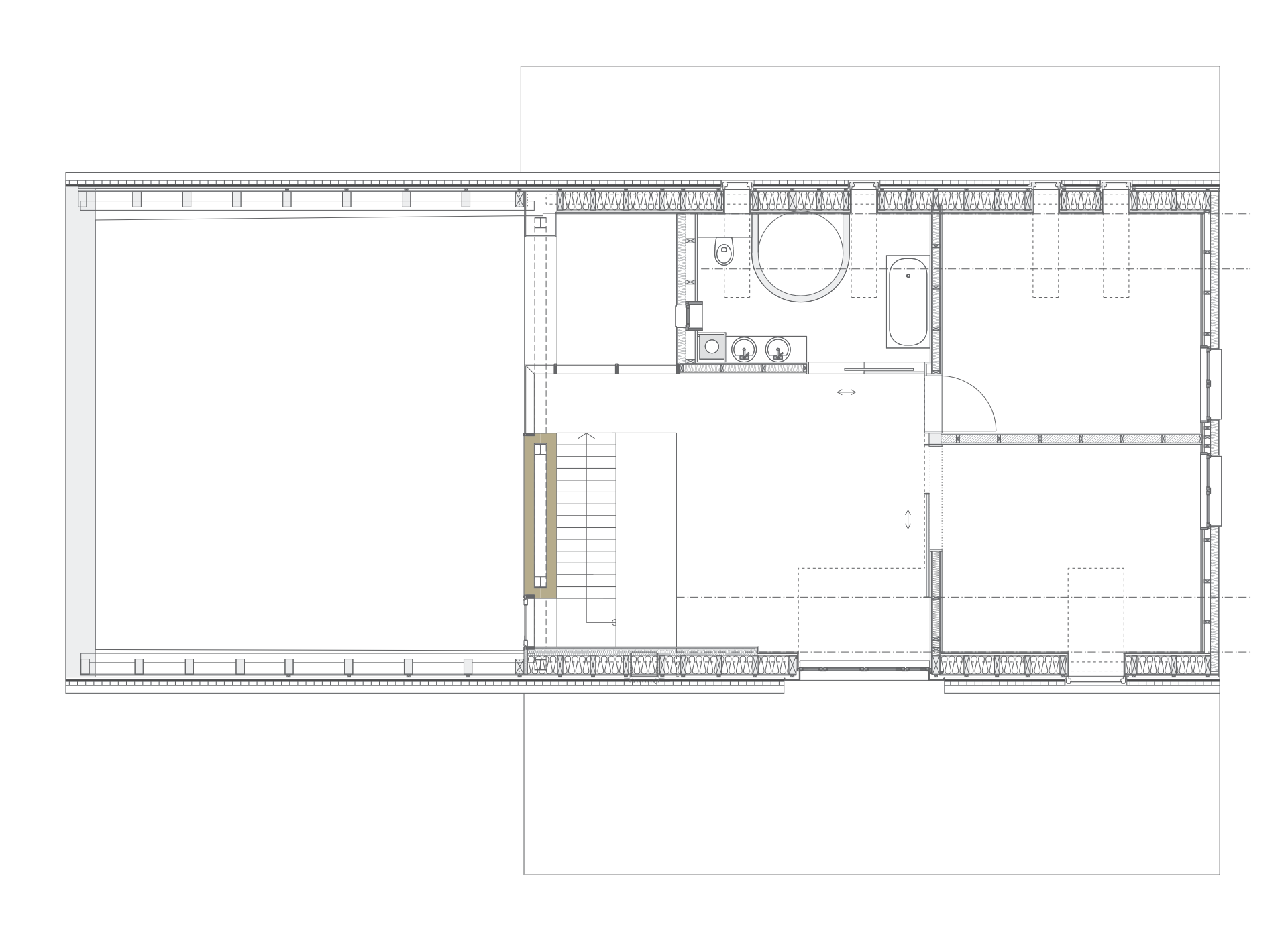
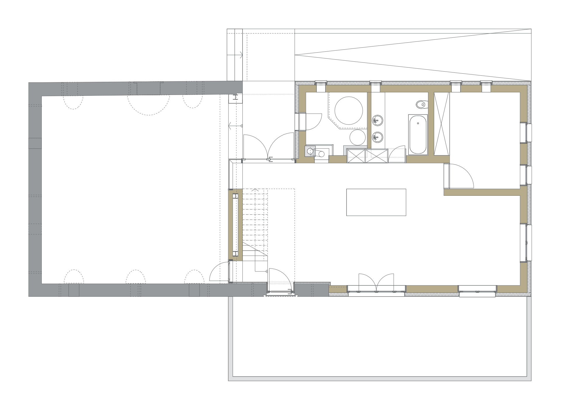
In intensiver Zusammenarbeit mit den Bauherren sowie die Unterstützung durch die lokalen Behörden ZRS Architekten Ingenieure im brandenburgischen Ihlow der Rumpf einer historischen Feldscheune mit einem Wohnhaus in tragender Stampflehmbauweise ergänzen. Mit dem Neubau wurde die Kubatur eines ehemals als Holzbau errichteten und eingestürzten Teil des Gebäudes sowie das Ensemble der landwirtschaftlichen Hofanlage wieder hergestellt. Dabei handelt es sich um das erste Wohnhaus in Stampflehmbauweise seit der Aufgabe der Notbaumaßnahmen nach dem Zweiten Weltkrieg.

Die Feldscheune bleibt als unbeheizter Raum in ihrer ursprünglichen Form erhalten. Das Erdgeschoss des Neubaus ist umgeben von tragenden Stampflehmwänden auf einer Gründung aus Stahlbeton und das Obergeschoss ist in Holzbauweise errichtet und mit eingeblasenen Hanffasern gedämmt. Mittelpunkt des Hauses bildet ein Küchenblock aus Stampflehm. Mit der weitestgehenden Verwendung nachwachsender und regenerativer Rohstoffe wie Lehm, Holz und Hanffaser wurde die Verwendung fossiler Ressourcen für die Errichtung reduziert. Der Primärenergieverbrauch wurde mit passiver Sonnenenergienutzung sowie über die Beheizung mit Solarkollektoren und einem Zentralheizkamin für Stückholz auf 24 Kwh/m² reduziert.