New Life for a Peat Shed

Schechen, Germany

Client & Construction
Emmanuel & Stefanie Heringer
Net Floor Area
259 m²
Completion
2015
Energy Performance
EnEv -30%
Awards
Fritz Bender Baupreises 2016
Geplant + Ausgeführt (Runner-Up)
Das Goldene Haus 2016 (Special Prize)
HolzbauPlus 2016 (Special Mention)
Architecture
Roswag Architekten with Guntram Jankowski (LP 1– 5)
Structural Engineer
Ziegert I Seiler Ingenieure
Photos
1, 2, 4, 6, 10, 12: Malte Fuchs
11: Stefanie Heringer
22, 23: Emmanuel Heringer
3, 5, 7–9, 13, 24–27: ZRS Architekten Ingenieure

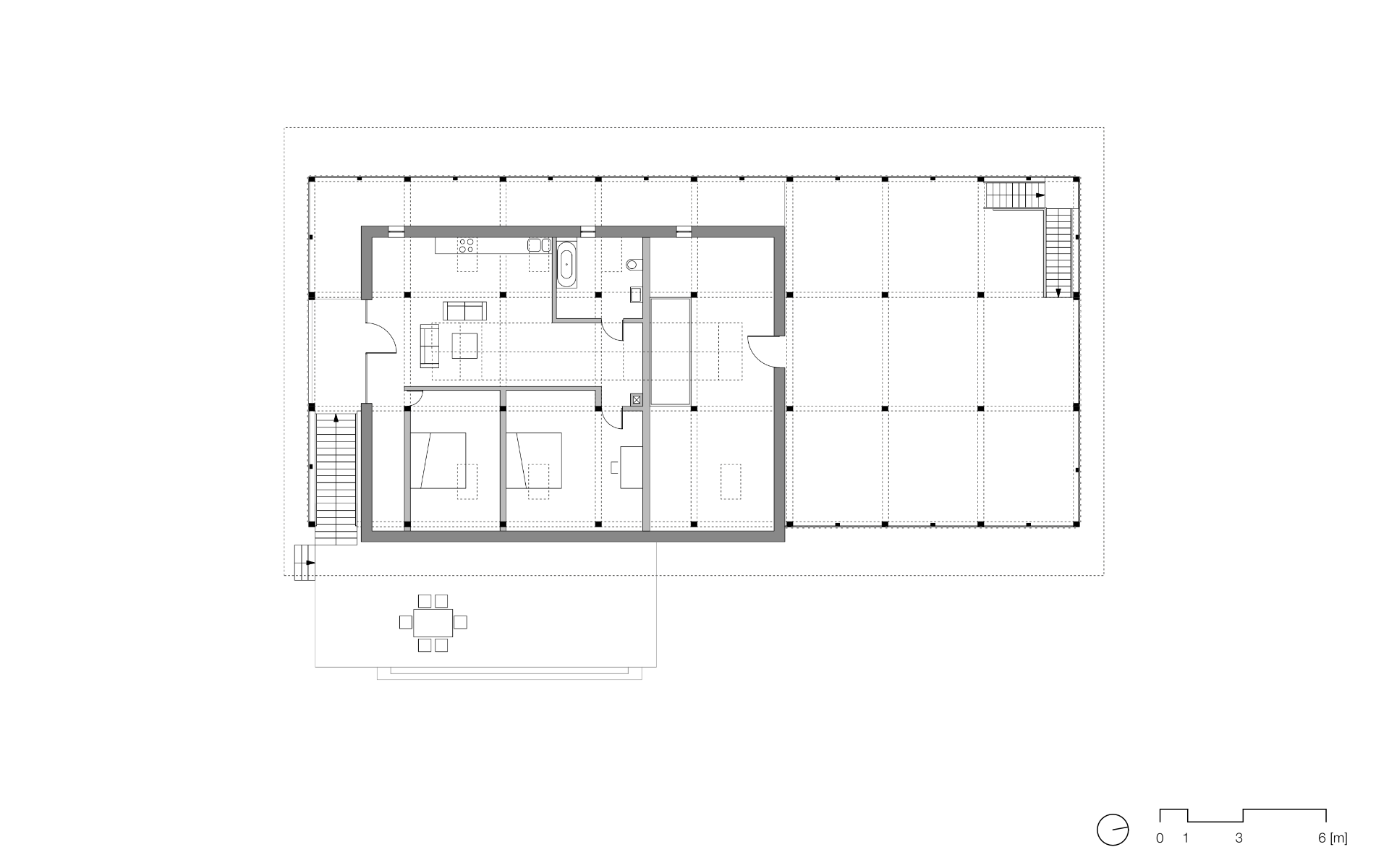
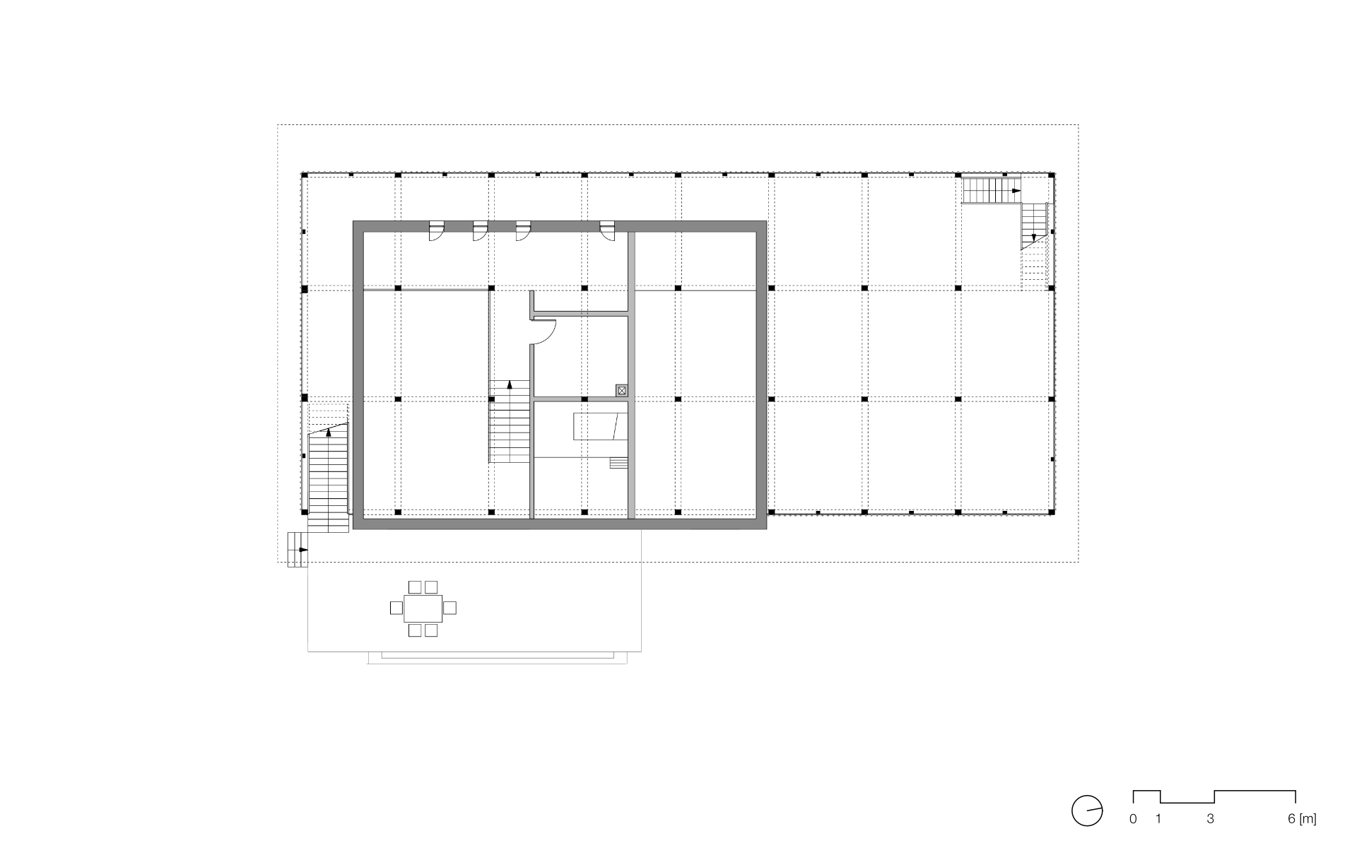
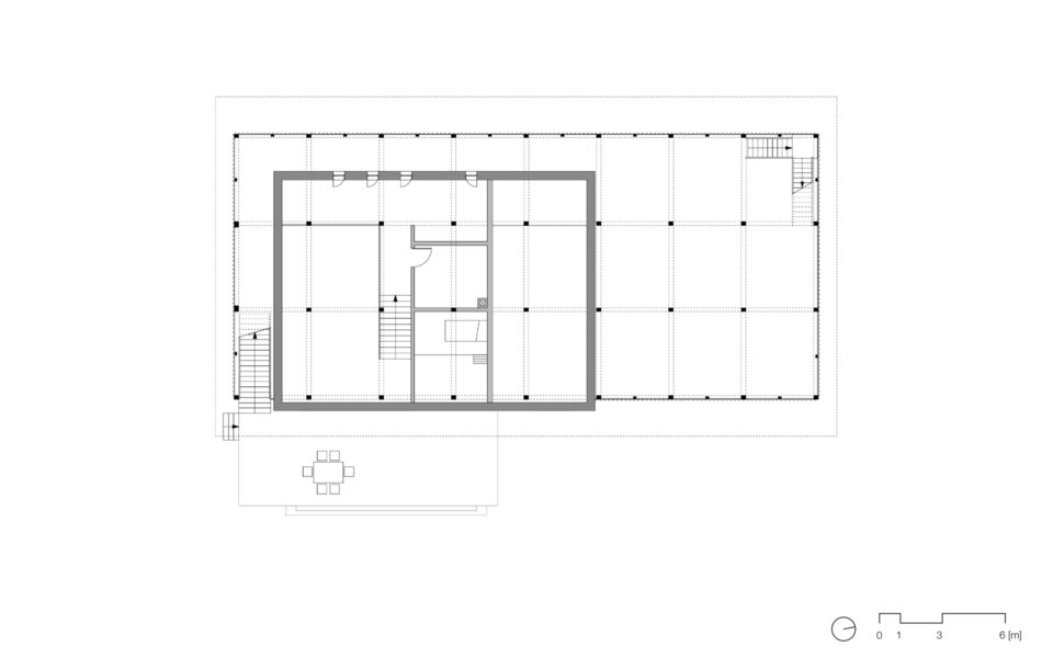
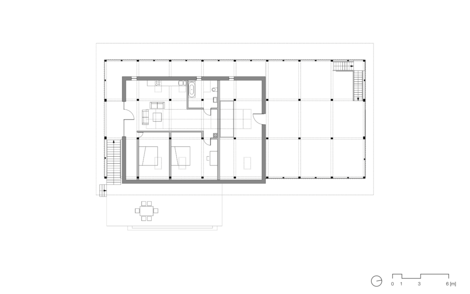
In Kolbermoor the clients rescued a historic peat barn that was in danger of demolition and disposal. The barn was dismantled, repairs undertaken throughout and then reassembled 15 km away in Schechen. The building fits seamlessly into its new context next to the station. Through the addition of a new highly insulated building shell, the barn becomes a home and workshop for basket weaving.

The new interior and exterior walls out of timber, cellulose and earth are slightly offset from the historic structure to make the different building phases clearly legible. The generated form brings the living and working areas together without a direct access between them.

A higher insulation standard and the regenerative wood burning heating system make the house a model for sustainable building. The improvement and re-use of a historic structure shows the potential contained in historic timber buildings. The utilised natural materials afford a comfortable and healthy interior climate and avoid the need for mechanical ventillation systems. The finished house operates at 30% below the strict German EnEv 2009 standard.

BDA Umbau-Atlas