Bürgerhaus Wismar

Wismar | Deutschland

Bauherr
Privat
Architektur | ENERGIEKONZEPT
Roswag Architekten
TRAGWERKSPLANUNG | FACHPLANUNG LEHMBAU | INGENIEURTECHNISCHE BAUAUFNAHME
Ziegert I Seiler Ingenieure
Energieberatung Denkmal
Marita Klempnow
BGF
470 m²
Wohnfläche
320 m² (4 Wohneinheiten)
Energieeffizienz
KfW Niedrigenergiehausstandard 115 (EnEV 2009)
Fertigstellung
02|2015
Auszeichnung
KfW Award Bauen und Wohnen 2017 (lobende Anerkennung)
Fotos
1–4, 7–11: Mila Hacke
5, 6, 12–14, 23–28: ZRS Architekten Ingenieure

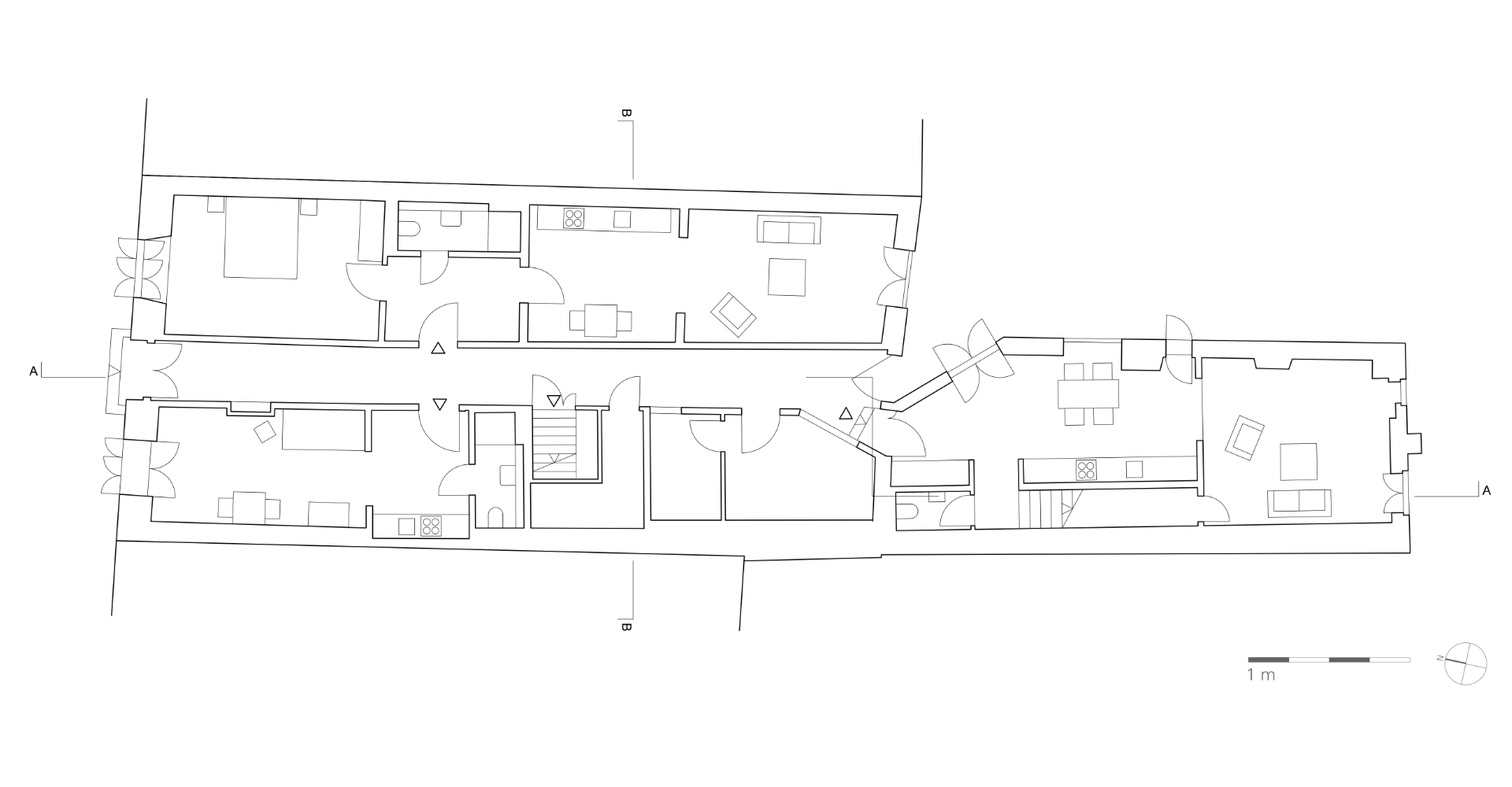
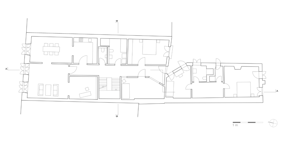
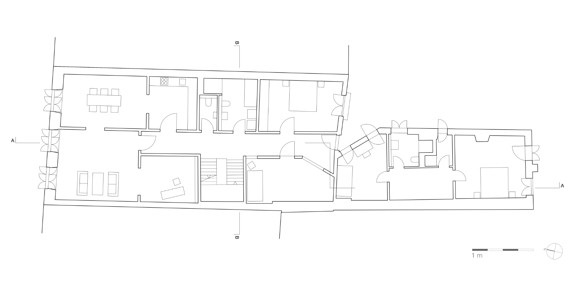
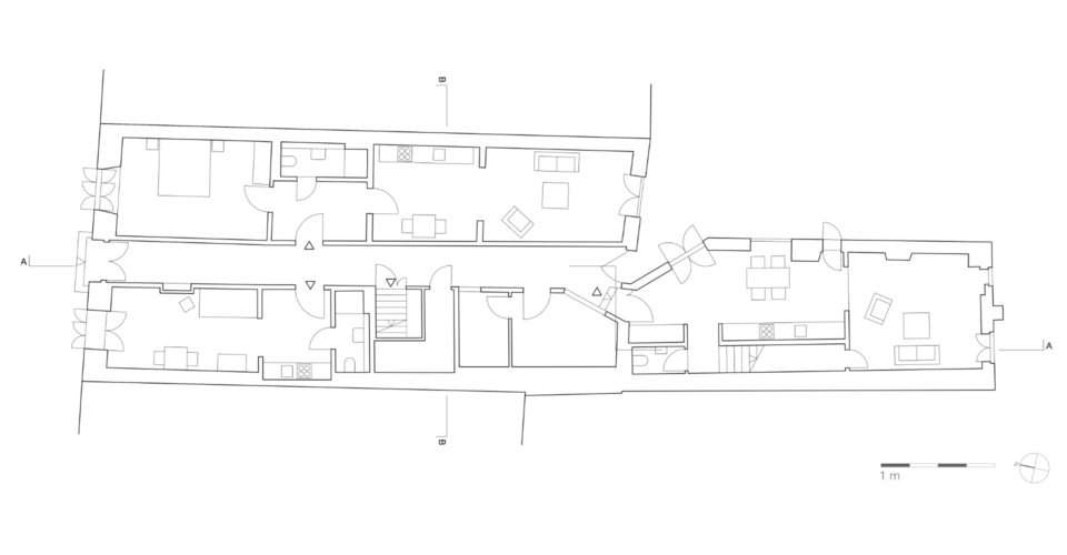
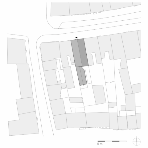
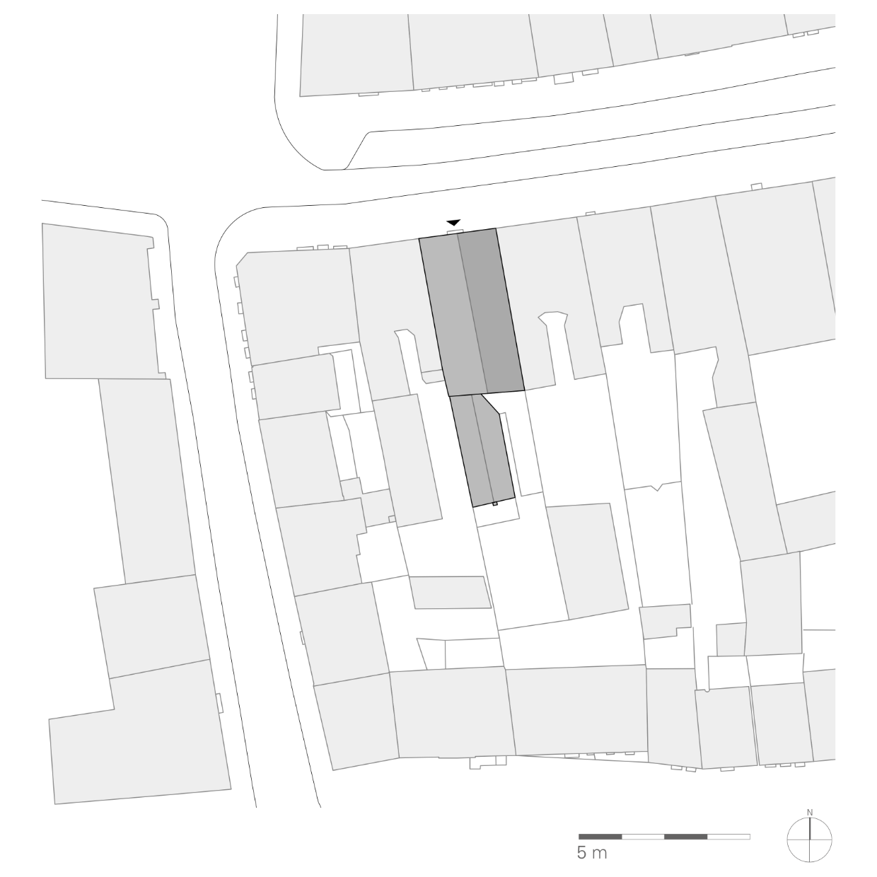
Das Bürgerhaus ist eines der ältesten erhaltenen Giebelhäuser in der historischen Altstadt der Hansestadt Wismar, die seit 2002 zum UNESCO-Welterbe gehört. Das ursprünglich als Brauhaus genutzte Einzeldenkmal besteht aus einem zweistöckigen Haupthaus mit auffälligem Volutengiebel und einem Hofanbau (Kemladen), der den eigentlichen Wohnzwecken diente. Im Kern handelt es sich um ein klassisches mittelalterliches Dielenhaus, dessen Straßenfassade und innere Fachwerkkonstruktion im 18. Jahrhundert zur Zweigeschossigkeit mit repräsentativer Wohnnutzung verändert wurden.

ZRS Architekten Ingenieure restaurierten das Ensemble unter denkmal- und materialgerechter Fortschreibung von Fassaden und innerer Struktur. Dabei wurden die Innenwände durch eine neue Bodenplatte nachgegründet, das Holztragwerk saniert und die Lehmsteinausfachung ergänzt. Durch die umfangreichen Dämmmaßnahmen mit Holzfaser und Cellulose konnte der KfW-Effizienzhausstandard 85 (EnEV 2009) erreicht werden. Die Wärmeerzeugung erfolgt über ein Mikro-BHKW. Die diffusionsoffene Bauweise im Zusammenspiel mit den sorptionsfähigen Lehmputz-Oberflächen sorgen für eine natürliche Regulierung des Raumklimas, so dass auf eine Lüftungsanlage verzichtet werden konnte. Das Bürgerhaus beherbergt heute vier Wohnungen, deren Grundrisse unter Beibehaltung der barocken Mittelflurerschließung neu entwickelt wurden.