JAHILI FORT

Al Ain, ABU DHABI

Client
Abu Dhabi Authority for Culture and Heritage (ADACH)
GENERAL PLANNING | ARCHITECTURE
Roswag & Jankowski Architekten
Structural Engineer & Earth Building Consultancy
Ziegert I Seiler Ingenieure
TECHNICAL BUILDING SERVICES
planungsteam energie + bauen
ELECTRICAL ENGINEERING
decon Deutsche Energie-Consult GmbH
Landscape Architect
freianlage.de
Earth Construction
Abu Dhabi Authority for Culture and Heritage (ADACH) | Department of Conservation in Cooperation with Hunnarshala Foundation
Earth CONSTRUCTION TRAINING
Claytec | Malerbetrieb Wolfgang Scheeres
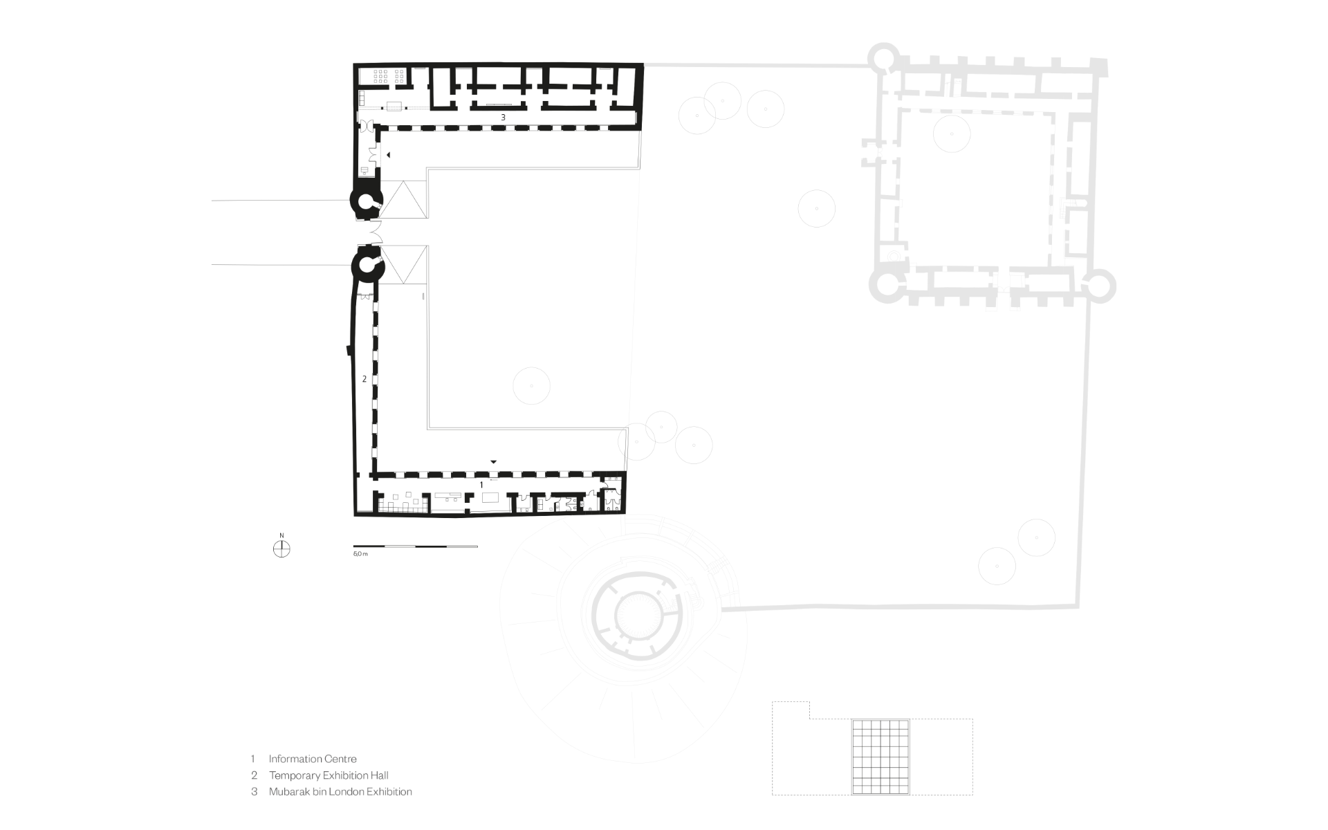
CURATOR (Mubarak bin London Exhibition)
Barker Langham
Exhibition Design ((Mubarak bin London Exhibition) & Graphic Design
Roswag & Jankowski Architekten in Cooperation with Christiane Liebert
Net floor area
625 m²
Completion
12/2008
Awards
TERRA Award - Category "Interior Layout & Design"
The International Architecture Awards – The Chicago Athenaeum
Photos
1–4, 6–10, 14–17: Torsten Seidel
5, 11–13, 18, 24–32: ZRS Architekten Ingenieure

The historic Jahili Fort in Al Ain was restored to house an exhibition and cultural centre while retaining is historic structure and substance. The Fort is located near the centre of the UNESCO protected Al Ain Oasis and previously served to protect and defend this vital resource. Its large enclosed courtyard can now be used to host a variety of cultural events connected to the celebration Al Ain’s cultural heritage.

Roswag & Jankowski Architekten were responsible for the restoration of the outer fort in line with international conservation best practice as well as the design and integration of the “Mubarak bin London: Wilfred Thesiger and the Freedom of the Desert” photo exhibition. The restoration was undertaken using the existing palette of historic natural building materials – primarily earth and palm. Where necessary historic earthen materials were dismantled, stored, resoaked and reused, while palm lintels were recovered and treated to ensure their durability. New modern structural elements were integrated to ensure the stability of the structure under earthquake stress. A water based cooling system was integrated into the earthen plaster of the walls, while insulation was added to the roofs. This, together with the radiative cooling effect of the 90cm thick massive earthen walls,  provide for a comfortable interior climate without over reliance on fossil resources. The subtle design strengthens and presents the existing spatial qualities, thus the building promotes local culture and identity, while serving as an example of a contemporary earthen architecture for the region.